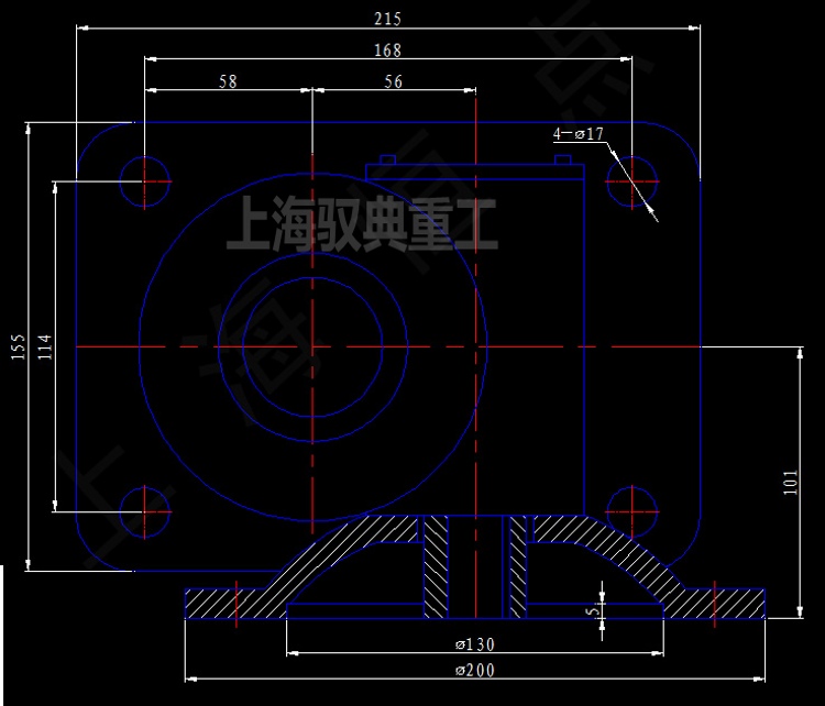
驭典重工为您介绍:SWLD5T-1A-II型丝杆升降机,俗称5吨升降机,他的外形尺寸和电机法兰CAD图,小编整理出来供需要的朋友参照。


SWLD5T-1A-II型丝杆升降机是电机直连型,可以装有标准80B5、90B5电机法兰,可以直连0.55kw、0.75kw、1.1kw、1.5kw三相异步电机,相同尺寸的单项异步电机也可以直连,但是如果是配伺服电机或者步进电机,需要联系驭典重工技术人员,定制合适的方形法兰与之配合,其他电机形式也可以咨询。


这款5吨的丝杆升降机丝杆尺寸是40*7的,丝杆直径40mm,导程(螺距是7mm),丝杆长度可以根据实际需要来定制,行程500mm内的时候,单台负载在2吨内,详细的还要根据行程的长短,升降速度的快慢来判断,来配合适的电机,比如六级电机扭矩更大,配电机的时候就可以选的功率稍微小点。
相信大家看了5吨丝杆升降机的电机法兰CAD图,对于选择电机的参数范围有了一定的了解,外形尺寸大家也可以做个参考,选型的时候可以简单判断一下空间是否足够,如果是做成丝杆升降平台,或者其他配合方式需要技术支持,也欢迎联系驭典重工,我们的技术销售人员会给您更好的建议。


